如何在空气淋浴室中解决常见问题?
首页 » 支持 » 产品知识 » 风淋室 » 如何在空气淋浴室中解决常见问题?

如何在空气淋浴室中解决常见问题?

浏览数量: 1586    

询价

["telegram","snapchat","wechat","line","twitter","facebook","linkedin","pinterest","whatsapp"]
如何在空气淋浴室中解决常见问题?

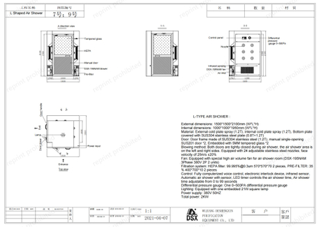
如何在 空气淋浴室中解决常见问题

{ [T187]} 是维持清洁无污染的环境,尤其是在药品,电子产品和食品加工等行业中,是一个至关重要的组成部分。但是,像其他任何设备一样,风淋室 S可能会遇到可能影响其性能的问题。在本文中,我们将讨论风淋室 s的常见故障排除提示,以帮助您解决可能遇到的任何问题。

1。气流问题

风淋室 S中最常见的问题之一是风量。这可能是由多种因素引起的,包括堵塞的喷嘴,脏过滤器或不正确的喷嘴放置。

  • 故障排除步骤

    • 检查喷嘴中是否有任何障碍物,并在必要时清洁。

    • 检查过滤器,如果它们脏或堵塞,则更换它们。

    • 确保正确放置喷嘴,以确保风量分布。

2。故障门

风淋室 s 中的自动门有时会故障,专业服务商到不正确打开或关闭的门等问题。

  • 故障排除步骤

    • 检查传感器并确保它们不会被阻止或损坏。

    • 检查门机构是否有任何磨损或损坏的迹象。

    • 手动测试门操作以确保其正常运行。

3。在室内泄漏

风淋室腔室 中的泄漏 会损害其维护清洁环境的能力。这些泄漏可能是由于垫圈受损,墙壁上的裂缝或不正确密封的门引起的。

  • 故障排除步骤

    • 检查垫圈并在损坏或磨损时更换它们。

    • 检查墙壁和门是否有任何裂缝或间隙,并在必要时密封。

    • 确保正确安装所有门密封并运行。

4。嘈杂的操作

风淋室吵闹的 { [t188] }可能会对附近工作的人造成干扰。这个问题可能是由零件,磨损或安装不当引起的。

  • 故障排除步骤

    • 检查任何松动的零件,并在必要时将其固定。

    • 检查轴承并在磨损时更换它们。

    • 确保正确安装风淋室并平整。

5。功率失败

功率故障可能导致风淋室到S 可靠功能,专业服务商可能会带来潜在的污染风险。

  • 故障排除步骤

    • 检查电源并确保其正常运行。

    • 检查任何断路器或保险丝,并在必要时更换。

    • 拥有可用的备用电源,以确保在停电期间连续操作。

为什么选择吴江 得胜鑫的空气淋浴室需求?

在吴江 得胜鑫中,我们专门提供 旨在满足客户特定需求的高质量凭借在行业中多年的经验,我们了解优化布局的重要性以及有助于最高效率的因素。我们的专家团队与客户紧密合作,以确保他们的风淋室 S根据其独特的要求量身定制,并配备最新技术和功能。风淋室 s。

如果您正在遇到风淋室或正在寻找新问题的任何问题,请立即联系吴江 吴江 得胜鑫。我们的专家团队将很乐意协助您解决任何问题,并为您提供可靠的可能的解决方案。我们以我们的客户服务和对卓越的承诺而感到自豪,我们期待与您合作,以确保您的风淋室正在有效地运行。