| 状态: | |
|---|---|
| 数量: | |
定制
DSX
1500*2000*2100mm
OEM,ODM
1年
CCC/CE/ISO9001
得胜鑫直通清洁室风淋室功能先进的设计,该设计结合了更好的空气过滤和循环系统。这些系统在风淋内部创建一个高度控制和清洁的环境。空气通过一系列高效率颗粒空气(HEPA)过滤器进行过滤器,从而删除了99.99%的颗粒,高达0.3微米。这样可以确保只有清洁和纯净的空气才能将其直接在穿过风淋的人员或设备上。
无尘室 风淋设计已进行了优化,以获得更大的效率和有效性。直通构型可实现无缝的空气流,更大程度地减少湍流并确保整个淋浴室的清洁空气均匀分布。此设计功能确保了每个表面和缝隙都可以彻底清洁,没有污染物持续的空间。
我们的风淋 无尘室供应商团队已仔细选择了用于构建这些风淋室的高质量材料。墙壁和地板可以用耐腐蚀的不锈钢材料制成,可提供极好的耐腐蚀性并确保持久和卫生的解决方案。光滑的表面易于清洁和维护,进一步增强了风淋的清洁度。
除了表现出色之外,我们的直通清洁室([T232]}}还考虑了用户便利。控制面板是用户友好且直观的,可以轻松操作和监视风淋参数。可以轻松调整淋浴周期持续时间,空气速度和其他设置,以适合特定无尘室要求。 风淋 无尘室设计也是可定制,具有单扇门或多个门的选项,以及各种尺寸,可容纳不同的无尘室布局。
我们了解成本是一个重要的考虑因素,这就是为什么我们 在质量上提供我们的直通清洁室风淋室为货币提供了非凡的价值,以负担得起的价格提供长期可靠性和性能。投资我们的风淋室不仅会增强您无尘室的清洁度,而且还会有助于提高产品质量和降低污染风险。 竞争性风淋价格风淋价格。
总之,我们的直通清洁室风淋室是在无尘室 工况中保持更高水平清洁度和污染控制的理想解决方案。凭借其更好的空气过滤系统,耐用的结构,用户友好的设计和有竞争力的价格,这些风淋室提供了无与伦比的性能和价值。 信赖我们的风淋 无尘室供应商团队为您提供了无尘室需求的优良解决方案。立即使用直通清洁室风淋室升级无尘室,并体验清洁度和效率的差异。

外壳:1.0、1.2或1.5毫米冷滚动的钢与粉末涂料或不锈钢(SUS#201或304)。
内部外壳:1.0、1.2或1.5毫米冷滚动的钢与粉末涂料或不锈钢(SUS#201或304)。
门:SUS#201,SUS#304或铝合金。
基础:SUS#201或304。
喷嘴:SUS#201或304。
1)自动吹
2)电子互锁 (一个处于开放状态的一扇门,另一扇门必须处于近距离状态。当人们进入风淋时,系统将通过光电传感器自动淋浴)
3)智能风淋
4)。淋浴时间从0到99秒,可以调节
5)。 pre 过滤器和hepa 过滤器
6)高质量
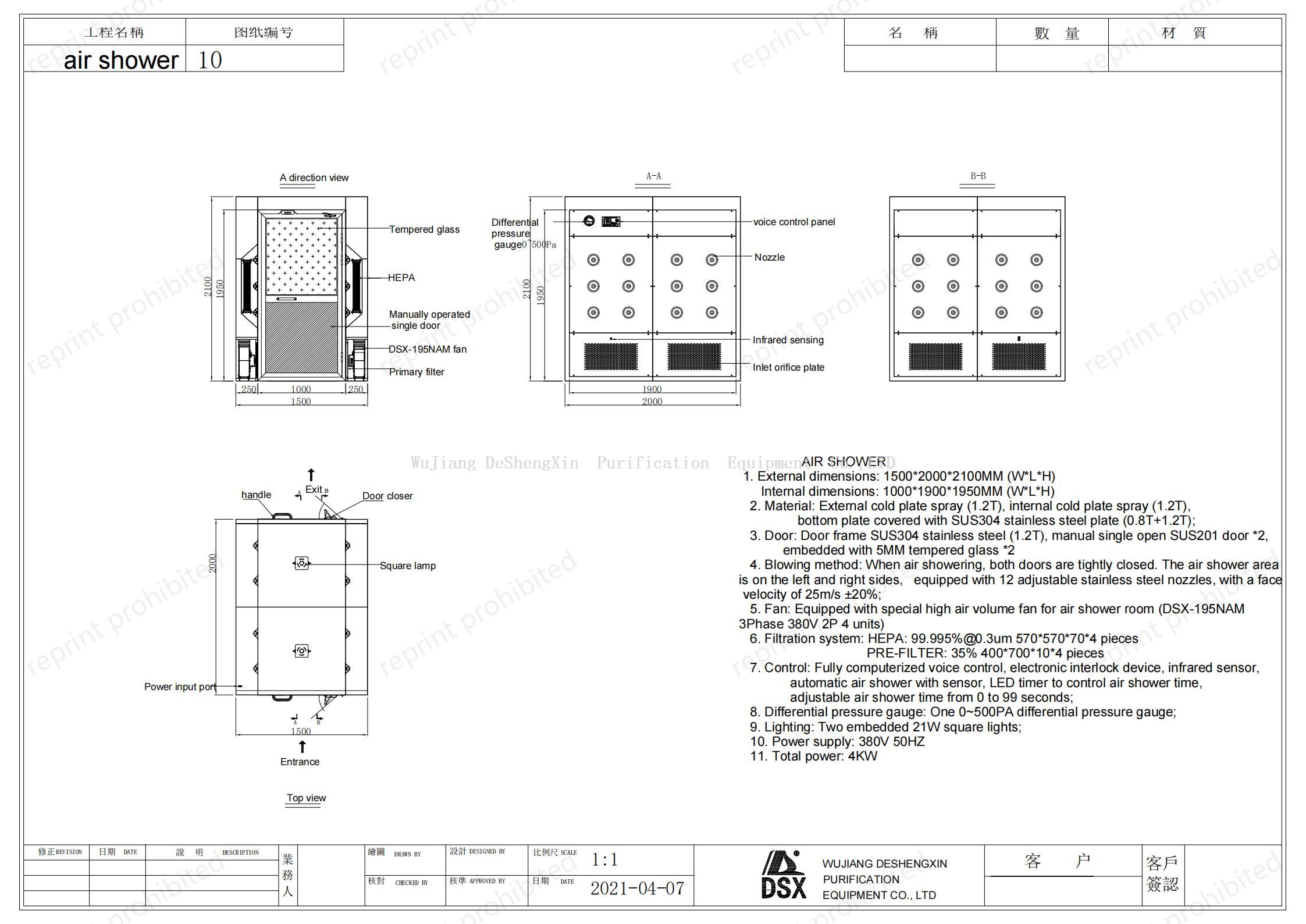
1。外部尺寸: 风淋室的外部维度为1500*2000*2100mm(W*L*H),为用户提供了足够的空间,可以舒适地进入和退出。
2.材料:洁净室空气淋浴房在外部和内部表面上用冷板喷雾材料建造,以确保耐用性和抵抗性腐蚀。底板还具有SUS304不锈钢的覆盖物,提供了额外的强度。
3。门:风淋室配备了由SUS201不锈钢制成的两个手动单人敞开门。这些门嵌入5毫米钢化玻璃,使用户可以清晰地欣赏周围环境。
4。吹式方法: 在风淋过程中,两个门都紧密关闭,以防止污染物进入。 风淋区域位于左侧和右侧,配备了十二个可调节的不锈钢喷嘴。这些喷嘴产生的空气速度为25m/s±20%,以确保从人员和材料中彻底清除颗粒。
5。风机: 风淋室配备了四个特殊大风量 风机 更好的空气循环。这些风机在整个风淋区域中提供有效的风量,从而增强了去污染过程。
6。过滤系统: 风淋室拟合HEPA 过滤器,其效率为99.995%,为0.3UM。有四个HEPA 过滤器测量570*570*70,可确保有效去除颗粒。此外,有四个初效过滤器 s,效率为35%,尺寸为400*700*10。
7。控制: 风淋室具有完全计算机化的语音控制系统,可以轻松操作和控制。它配备了电子互锁设备,用于自动风淋激活的红外传感器,以及一个LED计时器,以将风淋设置为0到99秒。
8。压差量规: 风淋室包括压差仪表(0〜500Pa),以监视和维持房间内的适当气压。
9.照明: 为了确保足够的照明,安装了两个嵌入式21W方形灯,在风淋过程中提供了清晰的可见性。
10。功率电源: 无尘室 风淋 在标准的380V 50Hz电源上运行,确保与大多数电气系统的兼容性。
11。总功率: 风淋室的总功耗为4kW,以合理的能源成本提供有效的操作。
12.Customization和生产能力:在得胜鑫上,我们致力于提供满足您独特要求的量身定制解决方案。我们的熟练设计师团队,保证了出色的质量和性能。无论您是需要小规模的定制还是大规模生产订单,我们都有能力容纳任何规模的项目。
得胜鑫直通清洁室空气淋浴是更好的的功能,高质量的结构和全面控制选项,是保持清洁度和更小化颗粒污染的理想解决方案,并在无尘室中污染颗粒,并控制工况。
模型 | 气淋浴 | ||||
DSX-AS-1P1 | DSX-AS-1P2 | DSX-AS-2P2S | DSX-AS-3P2S | ||
外部尺寸WXDXH(mm) | 1200x1000x 2150 | 1200x1000x 2150 1300x1000x 2150 | 1300x1500x 2150 | 1300x2000x 2150 | |
WXDXH(mm)中的尺寸 | 800x900x 1960 | 800x900x 1960 | 800x1400x 1960 | 800x1900x 1960 | |
案例的材料 | 冷卷的钢与粉末涂层,sus#201或sus#304 | ||||
合适的人 | 1 | 1 | 2 | 3 | |
喷嘴 | 6(一侧) | 12(两侧) | 18(双方) | 24(两个方面) | |
鼓风机力量(W) | 1000 | 2200 | 2400 | 4400 | |
hepa 过滤器的尺寸(mm) | 570x570x70 一件 | 570x570x70 两件 | 570x570x70 两件 | 570x570x70 两件 | |
喷嘴直径 | 30mm | ||||
空气淋浴时间 | 0〜99s可调 | ||||
爆发风速 | 25m/s(+-20%) | ||||
电压 | 380V/50Hz/3ph; 220V/50Hz/1ph | ||||
HEPA 过滤器效率 | 在0.3UM颗粒上效率高于99.99% | ||||
控制系统 | LCD控制面板,电子互锁和自动吹 | ||||

单人单杆风淋 单人双吹 风淋 两个人双吹 风淋 三人 double double double blowing 风淋

滑动门风淋室 快速滚动门 淋浴房 拐角处空气 淋浴房 隧道空气淋浴